Design  examples

DESIGN EXAMPLES

www.paradisegardentx.com

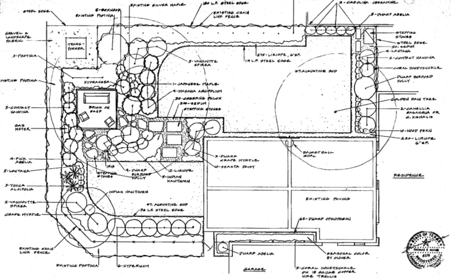
The images below are reductions of a few select landscape plans out of the many that I've done over the years.
I love doing free hand drawings with pencil and paper, although now I'm doing more computer assisted design.
A design starts with consultation with the client, to review your site and desires.
Next comes a site survey, if you don't already have one.  If you have a house floor plan, that is a good start.
The survey consists of key measurements, tree locations, site features that are to remain, walks, driveways, porches & decks, window heights, possible drainage issues, etc., as well as photos.
If you aren't in the Wimberley/Austin/San Antonio area, I can still help with your design remotely if you can provide many of the survey elements just mentioned.  It's fairly simple with a 100' tape, or even a smaller tape if your area isn't very large.  I can provide guidance with triangulation, which locates objects quite accurately.  Most properties I've surveyed in this way take a couple of hours or so.
Sometimes the design solution is fairly straightforward, and at other times I like to do preliminary sketches so that we can achieve something that you are happy with.
The design includes quantities, names, and suggested sizes of plants, as well as other landscape features.
It's all great fun, and a good design will enable you to fully enjoy your outdoor environment!    
Search